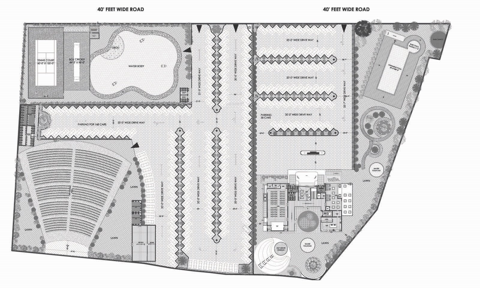
Garuda Nest Resorts, Sangareddy

Gupta Reality is a real estate cum construction company in hyderabad. The Garuda nest resorts is prestigious project by them and also a investment plan for the company to build a place that provide a club house resort where events, social gatherings and partys can be held.

Apse worked on the project from the scratch and provided architectural, structural and MEP services.